El CCDTyE “Club Atlético” funcionó en el sótano de un edificio de tres plantas -ubicado en la avenida Paseo Colón, entre Cochabamba y San Juan- que era la sede del Servicio de Aprovisionamiento y Talleres de la Policía Federal. Este edificio fue demolido para construir la Autopista 25 de Mayo y rellenado con sedimento, debajo del cual ha quedado la evidencia tanto arquitectónica como artefactual de su funcionamiento.
En el año 2002 se iniciaron los trabajos de arqueología -que continúan hasta la actualidad-, constituyendo a este ex CCD como la primera experiencia de arqueología urbana en la ciudad de Buenos Aires relacionada con la recuperación de la memoria sobre los crímenes ocurridos durante la última dictadura cívico militar.
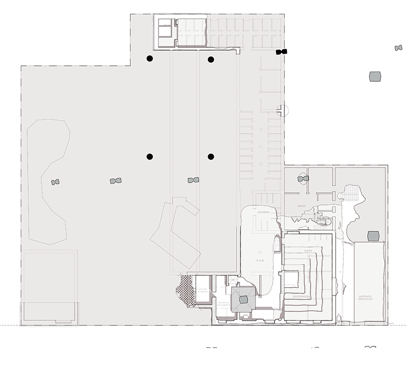
El RAI "Club Atlético" articula dos representaciones del sitio: por un lado, las planos de ambos niveles del CCD y, por el otro, el plano de la excavación, ambos producidos como resultado de la investigación y relevamiento realizados para este trabajo. Los planos del "Club Atlético" albergan los testimonios de quienes estuvieron detenidos desaparecidos; los planos de la excavación presentan las distintas instancias del trabajo arqueológico y de conservación, destacando los hallazgos que confirman la existencia del centro clandestino.
| 1 - ENTRADA VEHICULAR | |
| 2 - RECINTOS DE ACCESO |
| 3 - ESCALERA DE ACCESO / SUM / SALA DE GUARDIAS | |
| 4 - SALA DE CONSEJO / CELDAS DE AISLAMIENTO A y B/ ASCENSOR / CISTERNA | |
| 5 - ENFERMERÍA | |
| 6 - BAÑOS | |
| 7 - LEONERA | |
| 8 - CELDAS: SECTOR 1 | |
| 9 - SALAS DE TORTURA | |
| 10 - CELDAS: SECTOR 2 |